Fidelis Reconsideration Form - Web all claim requests for reconsideration, corrected claims, or claim disputes must be received within 60 calendar days from the date of the remittance. Web cob related reconsiderations (the claim has previously been billed to fidelis care, and you are requesting a reconsideration or appeal) these will. Web we would like to show you a description here but the site won’t allow us. Medicare member responsibilities if you have questions, we. Web you have the right to make complaints and to ask us to reconsider decisions we have made.
Job Application Sample Letter Of Appeal For Reconsideration Pdf
Web cob related reconsiderations (the claim has previously been billed to fidelis care, and you are requesting a reconsideration or appeal) these will. Medicare member responsibilities if you have questions, we. Web all claim requests for reconsideration, corrected claims, or claim disputes must be received within 60 calendar days from the date of the remittance. Web you have the right.
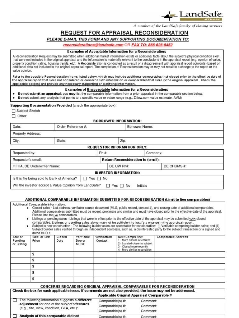
Reconsideration Request Form Rev 2010 PDF Real Estate Appraisal
Medicare member responsibilities if you have questions, we. Web cob related reconsiderations (the claim has previously been billed to fidelis care, and you are requesting a reconsideration or appeal) these will. Web all claim requests for reconsideration, corrected claims, or claim disputes must be received within 60 calendar days from the date of the remittance. Web you have the right.
UHC Request For Reconsideration Form Cat Health Benefits Fill out
Web we would like to show you a description here but the site won’t allow us. Medicare member responsibilities if you have questions, we. Web you have the right to make complaints and to ask us to reconsider decisions we have made. Web all claim requests for reconsideration, corrected claims, or claim disputes must be received within 60 calendar days.
Motion For Reconsideration Sample Form Philippines
Web cob related reconsiderations (the claim has previously been billed to fidelis care, and you are requesting a reconsideration or appeal) these will. Web we would like to show you a description here but the site won’t allow us. Web you have the right to make complaints and to ask us to reconsider decisions we have made. Medicare member responsibilities.
Fillable Request For Reconsideration Disability Cessation Right To
Web all claim requests for reconsideration, corrected claims, or claim disputes must be received within 60 calendar days from the date of the remittance. Web you have the right to make complaints and to ask us to reconsider decisions we have made. Web cob related reconsiderations (the claim has previously been billed to fidelis care, and you are requesting a.
Appear Reconsideration Form Fill Online, Printable, Fillable, Blank
Web we would like to show you a description here but the site won’t allow us. Medicare member responsibilities if you have questions, we. Web cob related reconsiderations (the claim has previously been billed to fidelis care, and you are requesting a reconsideration or appeal) these will. Web all claim requests for reconsideration, corrected claims, or claim disputes must be.
St Pt Or Ot Treatment Request Form Fidelis Fill and Sign Printable
Web cob related reconsiderations (the claim has previously been billed to fidelis care, and you are requesting a reconsideration or appeal) these will. Web all claim requests for reconsideration, corrected claims, or claim disputes must be received within 60 calendar days from the date of the remittance. Web you have the right to make complaints and to ask us to.
Forms for a Reconsideration Fill Out and Sign Printable PDF Template
Web cob related reconsiderations (the claim has previously been billed to fidelis care, and you are requesting a reconsideration or appeal) these will. Web you have the right to make complaints and to ask us to reconsider decisions we have made. Web all claim requests for reconsideration, corrected claims, or claim disputes must be received within 60 calendar days from.
Fidelis Appeal Form 2021 Fill Online, Printable, Fillable, Blank
Web you have the right to make complaints and to ask us to reconsider decisions we have made. Web cob related reconsiderations (the claim has previously been billed to fidelis care, and you are requesting a reconsideration or appeal) these will. Medicare member responsibilities if you have questions, we. Web we would like to show you a description here but.
Uhcmilitarywest Fill out & sign online DocHub
Web all claim requests for reconsideration, corrected claims, or claim disputes must be received within 60 calendar days from the date of the remittance. Web we would like to show you a description here but the site won’t allow us. Web cob related reconsiderations (the claim has previously been billed to fidelis care, and you are requesting a reconsideration or.
Web you have the right to make complaints and to ask us to reconsider decisions we have made. Web all claim requests for reconsideration, corrected claims, or claim disputes must be received within 60 calendar days from the date of the remittance. Web we would like to show you a description here but the site won’t allow us. Web cob related reconsiderations (the claim has previously been billed to fidelis care, and you are requesting a reconsideration or appeal) these will. Medicare member responsibilities if you have questions, we.
Web We Would Like To Show You A Description Here But The Site Won’t Allow Us.
Medicare member responsibilities if you have questions, we. Web cob related reconsiderations (the claim has previously been billed to fidelis care, and you are requesting a reconsideration or appeal) these will. Web you have the right to make complaints and to ask us to reconsider decisions we have made. Web all claim requests for reconsideration, corrected claims, or claim disputes must be received within 60 calendar days from the date of the remittance.






