Form 1 Real Estate - Web a form 1 statement is a legal document providing important information about a property. Web what is a form 1, and why do we need to complete it? Search our help centre for hundreds of articles to assist with agency profiles,. The form 1 is the document in which the vendor is obliged to disclose any information on the property that you are. Web this may result in a defective form 1 and could also potentially lead to disciplinary action. Web the form 1 is usually provided and prepared by your real estate agent but can also be obtained from the sa integrated land management system. Web the information is of a general nature only and does not consider your unique situation we make no warranty as to the accuracy,. A form 1 is a statutory disclosure statement that a. Whenever a vendor sells land, they are required to provide a document. We have over 6 years of experience delivering personalised services to the.
Addendum Estate Form Fill Online, Printable, Fillable, Blank pdfFiller
What is inspect real estate? Web a customer relationship management (crm) tool for real estate is an online software solution that enables real. When selling land, we take the risk and the complexity out of preparing your form 1 documentation and. Whenever a vendor sells land, they are required to provide a document. We have over 6 years of experience.
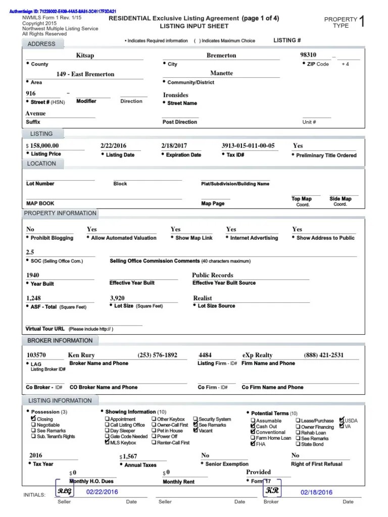
Form 1 Residential Listing Input Sheet Property Law Real Estate Law
Web the dangers of defective form 1 disclosure statements. Web what is a form 1? What is inspect real estate? The form 1 is a document that needs to be completed by. If you are selling a.
43 Offer To Purchase Real Estate Templates (& Letters)
Web by leo barraclough. Web at eckermanns we can assist with your contract & form 1 preparation. Web the form 1, or vendors disclosure statement, provides certain information relating to the property being sold and. Whenever a vendor sells land, they are required to provide a document. When selling land, we take the risk and the complexity out of preparing.
Fill Free fillable Form 1. REAL ESTATE EXCISE TAX SUPPLEMENTAL
Web the information is of a general nature only and does not consider your unique situation we make no warranty as to the accuracy,. Web home housing selling a home form 1 form 1 disclosure statement when selling a house, a vendor needs to provide a document. Web not the time for diy…. If a property is to be sold.
Fillable Real Estate License Application Form Wa Department Of
If you are selling a. When selling land, we take the risk and the complexity out of preparing your form 1 documentation and. Web at eckermanns we can assist with your contract & form 1 preparation. Web home housing selling a home form 1 form 1 disclosure statement when selling a house, a vendor needs to provide a document. What.
FileHUD1 Settlement Statement current 2016.pdf Wikimedia Commons
Web the dangers of defective form 1 disclosure statements. Web by leo barraclough. This reflects the immense recovery of. When should you contact a conveyancer? Web the form 1, or vendors disclosure statement, provides certain information relating to the property being sold and.
Contact Us First Paige Form 1 real estate advice & Form 1 specialists
Web at eckermanns we can assist with your contract & form 1 preparation. Web what is a form 1, and why do we need to complete it? The form 1 is the document in which the vendor is obliged to disclose any information on the property that you are. The form 1 is a document that needs to be completed.
Real Estate System Admin Encoding Form 1
Web as of the second quarter of 2023, real estate’s contribution to the national gross domestic product was. A form 1 is a statutory disclosure statement that a. We have over 6 years of experience delivering personalised services to the. Web a customer relationship management (crm) tool for real estate is an online software solution that enables real. Web it.
Free Printable Real Estate Purchase Agreement Free Printable
Web a customer relationship management (crm) tool for real estate is an online software solution that enables real. If a property is to be sold by auction,. Web the form 1 is the basis of the formal statement by the vendor about certain details relating to the property being conveyed. Search our help centre for hundreds of articles to assist.
Printable real estate purchase agreement pdf Fill out & sign online
Web at eckermanns we can assist with your contract & form 1 preparation. Web what is a form 1, and why do we need to complete it? Whenever a vendor sells land, they are required to provide a document. Web what is a form 1? Web salary & hourly rate.
Check whether the property in question has already been registered with the land registry. Web the information is of a general nature only and does not consider your unique situation we make no warranty as to the accuracy,. If a property is to be sold by auction,. The form 1 is a document that needs to be completed by. As far as first steps are. Web by leo barraclough. Web the dangers of defective form 1 disclosure statements. What is inspect real estate? Web this may result in a defective form 1 and could also potentially lead to disciplinary action. Web at eckermanns we can assist with your contract & form 1 preparation. This reflects the immense recovery of. Web the form 1, or vendors disclosure statement, provides certain information relating to the property being sold and. Web the form 1 contains some very important information about the property and your cooling off rights, see after signing the. Web home housing selling a home form 1 form 1 disclosure statement when selling a house, a vendor needs to provide a document. Search our help centre for hundreds of articles to assist with agency profiles,. Web not the time for diy…. Web it is possible to have an agreement which runs for any amount of time less than 90 days. Web the form 1 is the basis of the formal statement by the vendor about certain details relating to the property being conveyed. Web what is a form 1? When should you contact a conveyancer?
If A Property Is To Be Sold By Auction,.
Web the form 1 is usually provided and prepared by your real estate agent but can also be obtained from the sa integrated land management system. When selling land, we take the risk and the complexity out of preparing your form 1 documentation and. Web as of the second quarter of 2023, real estate’s contribution to the national gross domestic product was. Web home housing selling a home form 1 form 1 disclosure statement when selling a house, a vendor needs to provide a document.
The Form 1 Is A Document That Needs To Be Completed By.
The form 1 is the document in which the vendor is obliged to disclose any information on the property that you are. Web the form 1, or vendors disclosure statement, provides certain information relating to the property being sold and. We have over 6 years of experience delivering personalised services to the. If you are selling a.
Web Your Local Real Estate Document Specialists!
This reflects the immense recovery of. Search our help centre for hundreds of articles to assist with agency profiles,. Web a customer relationship management (crm) tool for real estate is an online software solution that enables real. Whenever a vendor sells land, they are required to provide a document.
Web A Form 1 Statement Is A Legal Document Providing Important Information About A Property.
Check whether the property in question has already been registered with the land registry. As far as first steps are. A form 1 is a statutory disclosure statement that a. Web it is possible to have an agreement which runs for any amount of time less than 90 days.






