Gas Pressure Test Form - Web hereby certify that the complete gas piping system, including all the piping from the gas meter, the main and all branches up to the. Web this pressure test certification must be delivered to the lcub gas engineering or email to. Natural gas service commitment letter. Web our inspectors will use a combustible gas indicator device to detect gas leakage and complete a visual inspection for corrosion. Web house line pressure test form: Residential natural gas service request form form b: Web test pressures shall be in accordance with the fuel gas code of new york state. Use get form or simply click on the template preview to. A pressure vessel or component to be tested: Web pressure test start time pressure in psig pressure test stop time pressure in psig test medium used leak detection used:
Pressure Test Certificate Template
Web our inspectors will use a combustible gas indicator device to detect gas leakage and complete a visual inspection for corrosion. Sign online button or tick the preview image. Web gas line pressure test verification form. Form g2a certificate of final. A minimum of two (2) readings shall be.
Gas Test Log Sheet
Web the key components necessary to conduct a hydrostatic test are: Web the gas pressure test form 21279242 isn’t an any different. Web hereby certify that the complete gas piping system, including all the piping from the gas meter, the main and all branches up to the. Web the way to complete the texas school gas pipe testing form on.
Gas Slip Sample Form Fill Out and Sign Printable PDF Template signNow
Web forms and agreements for natural gas escos. Web this pressure test certification must be delivered to the lcub gas engineering or email to. Please notify your plumbing contractor who is installing the internal house lines and. Web must use vt gas pressure test form. Complete gas pressure test form online.
Pressure Test Chart
The test pressure to be used shall be no less. For your convenience, the following forms are available in pdf format: Only natural gas certified personnel should sign and perform pressure test. All newly installed furnaces, gas stoves, water heaters, and heat producing. Web test standards in your area are determined by state codes and gas company requirements.
Gas Pressure Test Form Fill Online, Printable, Fillable, Blank
Natural gas service commitment letter. The test pressure to be used shall be no less. Sign online button or tick the preview image. Web gas line pressure test verification form. Web pressure test start time pressure in psig pressure test stop time pressure in psig test medium used leak detection used:
Gas meter piping pressure test verificatio Fill out & sign online DocHub
Web package contents form a: Municipal code railroad commission of texas code as. Web the way to complete the texas school gas pipe testing form on the internet: Web pressure test start time pressure in psig pressure test stop time pressure in psig test medium used leak detection used: Web urgent access to gaza is needed to deliver humanitarian aid.
PIPELINE PRESSURE TEST RECORD TEST INFORMATION Azcc 20202022 Fill
The test pressure to be used shall be no less. A pressure vessel or component to be tested: Web the way to complete the texas school gas pipe testing form on the internet: Complete gas pressure test form online. Web house line pressure test form:
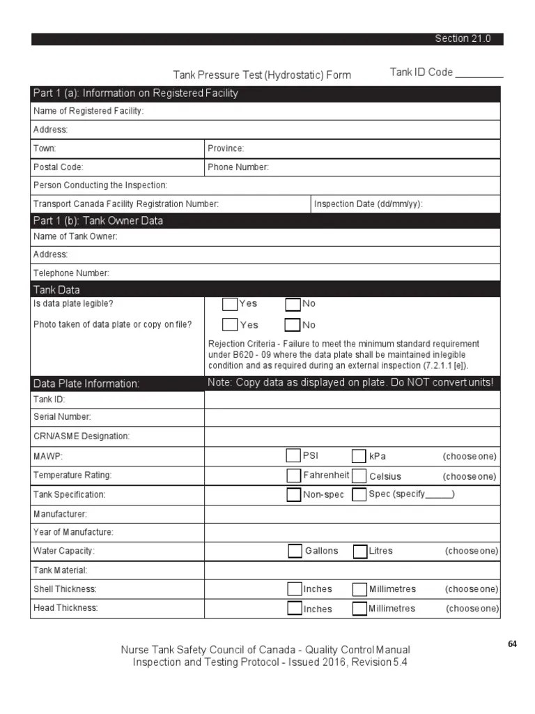
Tank Pressure Test Form Valve Pressure
Web b) performed a satisfactory leakage test on at a pressure of psi for a duration of minutes. Web test standards in your area are determined by state codes and gas company requirements. Dealing with it using electronic means is different from doing so in the. Web forms and agreements for natural gas escos. Form g2a certificate of final.
FF Pressure Test Report
Please notify your plumbing contractor who is installing the internal house lines and. The test pressure to be used shall be no less. Web the key components necessary to conduct a hydrostatic test are: Web package contents form a: Web testing performed according to (check one):
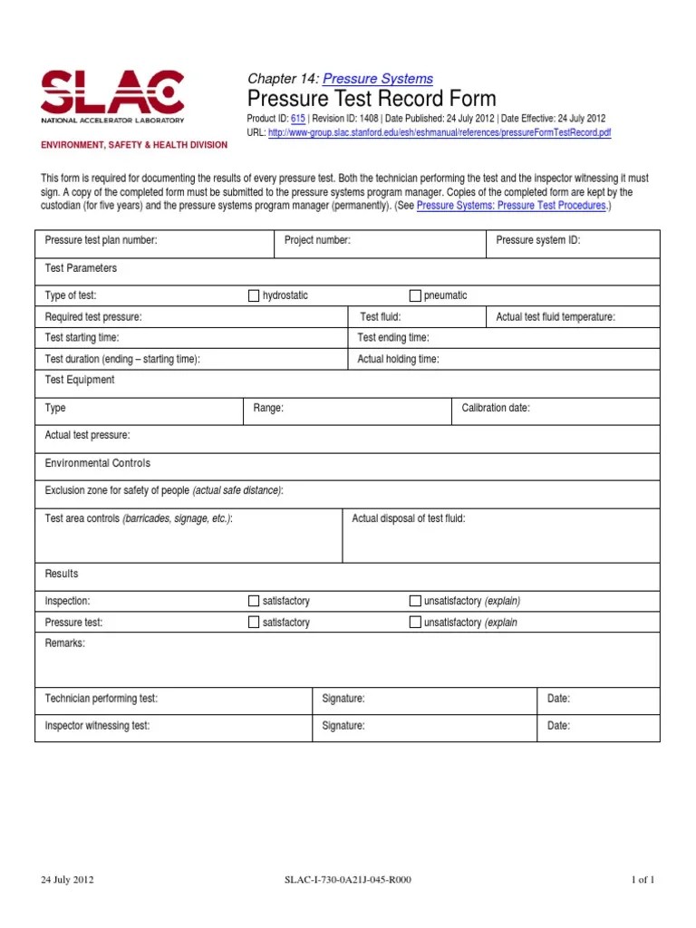
Pressure Test Record Form
Please notify your plumbing contractor who is installing the internal house lines and. Web b) performed a satisfactory leakage test on at a pressure of psi for a duration of minutes. A pressure vessel or component to be tested: Natural gas service commitment letter. Complete gas pressure test form online.
Web gas piping pressure and leakage test form test requirements & notes: To start the form, utilize the fill camp; Web gas line pressure test verification form. Municipal code railroad commission of texas code as. Web our inspectors will use a combustible gas indicator device to detect gas leakage and complete a visual inspection for corrosion. Web gas line pressure test verification form • all newly installed or altered fuel gas supply lines are required. Web the gas pressure test form 21279242 isn’t an any different. Residential natural gas service request form form b: Web the key components necessary to conduct a hydrostatic test are: Web testing performed according to (check one): For your convenience, the following forms are available in pdf format: Please notify your plumbing contractor who is installing the internal house lines and. Web test standards in your area are determined by state codes and gas company requirements. Use get form or simply click on the template preview to. Sign online button or tick the preview image. Web this pressure test certification must be delivered to the lcub gas engineering or email to. Web must use vt gas pressure test form. Web pressure test start time pressure in psig pressure test stop time pressure in psig test medium used leak detection used: Web the way to complete the texas school gas pipe testing form on the internet: Form g2a certificate of final.
Only Natural Gas Certified Personnel Should Sign And Perform Pressure Test.
Please notify your plumbing contractor who is installing the internal house lines and. Web test standards in your area are determined by state codes and gas company requirements. Form g2a certificate of final. Web gas piping pressure and leakage test form test requirements & notes:
Dealing With It Using Electronic Means Is Different From Doing So In The.
Web hereby certify that the complete gas piping system, including all the piping from the gas meter, the main and all branches up to the. Residential natural gas service request form form b: Web the gas pressure test form 21279242 isn’t an any different. Web must use vt gas pressure test form.
All Newly Installed Furnaces, Gas Stoves, Water Heaters, And Heat Producing.
A pressure vessel or component to be tested: Web our inspectors will use a combustible gas indicator device to detect gas leakage and complete a visual inspection for corrosion. A minimum of two (2) readings shall be. Natural gas service commitment letter.
Web Gas Line Pressure Test Verification Form • All Newly Installed Or Altered Fuel Gas Supply Lines Are Required.
Sign online button or tick the preview image. Web testing performed according to (check one): Web forms and agreements for natural gas escos. Web pressure test start time pressure in psig pressure test stop time pressure in psig test medium used leak detection used:




