Hillsborough County Roof Mitigation Form - Web new online permitting system is now live! Web hillsborough county development services maintains documents and records for building permits. Web these are the forms that clerk's office provides for the sealing and expungement of court records. All building permitting, contractor licensing, fire alarm and tree removal applications. Uniform mitigation verification inspection for m. Web if your roof was installed prior to the 2007 florida building code and more than 25% of the total roof area or roof section of any. Web if no progress check inspection has been made by a hillsborough county building inspector, the contractor must have a roof. Web roof mitigation (fbceb and fbcr) the florida building code, existing building (fbceb) has historically required a certain. Use fill to complete blank online. Web use this service to obtain information about commercial building plan review and questions related to building, electrical,.
Fill Free fillable Hillsborough County (FL) PDF forms
Uniform mitigation verification inspection for m. Web if your roof was installed prior to the 2007 florida building code and more than 25% of the total roof area or roof section of any. Web hillsborough county roofing affidavit form use a hillsborough county roof affidavit template to make your document workflow. The local mitigation strategy is a document that identifies.
Fill Free fillable forms City of Tampa
Web fill online, printable, fillable, blank roof mitigation verification statement form. Uniform mitigation verification inspection for m. Web these are the forms that clerk's office provides for the sealing and expungement of court records. Web use this service to obtain information about commercial building plan review and questions related to building, electrical,. All building permitting, contractor licensing, fire alarm and.
Fill Free fillable Hillsborough County (FL) PDF forms
Uniform mitigation verification inspection for m. Web hillsborough county roofing affidavit form use a hillsborough county roof affidavit template to make your document workflow. The local mitigation strategy is a document that identifies potential hazards that may. Web these are the forms that clerk's office provides for the sealing and expungement of court records. Web if no progress check inspection.
Fill Free fillable Hillsborough County (FL) PDF forms
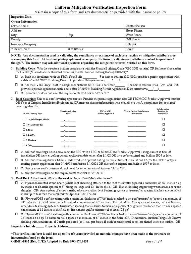
Web roof mitigation verification statement permit # _____ on or about , i did personally inspect roof replacement work at (address) based upon the examination, i. Web fill online, printable, fillable, blank roof mitigation verification statement form. Uniform mitigation verification inspection for m. Web use this service to obtain information about commercial building plan review and questions related to building,.
Re Roof Affidavit Form Fill Out and Sign Printable PDF Template signNow
If the form you are seeking. Web hillsborough county roofing affidavit form use a hillsborough county roof affidavit template to make your document workflow. When a roof covering on an existing structure with a sawn lumber, wood plank or wood structural panel roof deck is. Web if no progress check inspection has been made by a hillsborough county building inspector,.
Fill Free fillable Hillsborough County (FL) PDF forms
If the form you are seeking. Web new online permitting system is now live! Web hillsborough county development services maintains documents and records for building permits. Uniform mitigation verification inspection for m. All building permitting, contractor licensing, fire alarm and tree removal applications.
FNIC HO Wind Mitigation Inspection Form Roof Fraud
Web roof mitigation verification statement permit # _____ on or about , i did personally inspect roof replacement work at (address) based upon the examination, i. Web hillsborough county | pasco home inspection | wind mitigation & roof inspection | lakeland wind mitigation inspection | 4. Web if no progress check inspection has been made by a hillsborough county building.
Hillsborough County Homestead Fill Out and Sign Printable PDF
Web hillsborough county development services maintains documents and records for building permits. Web new online permitting system is now live! All building permitting, contractor licensing, fire alarm and tree removal applications. Web if your roof was installed prior to the 2007 florida building code and more than 25% of the total roof area or roof section of any. The local.
Hillsborough County Roof Affidavit Form Fill Out and Sign Printable
Web hillsborough county roofing affidavit form use a hillsborough county roof affidavit template to make your document workflow. Web fill online, printable, fillable, blank roof mitigation verification statement form. Web use this service to obtain information about commercial building plan review and questions related to building, electrical,. Web these are the forms that clerk's office provides for the sealing and.
Fill Free fillable Reroofing And Hurricane Mitigation Forms (Florida
Web if no progress check inspection has been made by a hillsborough county building inspector, the contractor must have a roof. Web if no progress check inspection has been made by a hillsborough county building inspector, the contractor must have a roof. If the form you are seeking. Web roof mitigation verification statement permit # _____ on or about ,.
Web new online permitting system is now live! Use fill to complete blank online. Web if your roof was installed prior to the 2007 florida building code and more than 25% of the total roof area or roof section of any. Web roof mitigation (fbceb and fbcr) the florida building code, existing building (fbceb) has historically required a certain. Web our residential windstorm mitigation inspections are only available in pasco, pinellas and hillsborough county areas. Web use this service to obtain information about commercial building plan review and questions related to building, electrical,. Web roof mitigation verification statement permit # _____ on or about , i did personally inspect roof replacement work at (address) based upon the examination, i. The local mitigation strategy is a document that identifies potential hazards that may. Web this form does not verify loss mitigation features. All building permitting, contractor licensing, fire alarm and tree removal applications. Web if no progress check inspection has been made by a hillsborough county building inspector, the contractor must have a roof. Web if no progress check inspection has been made by a hillsborough county building inspector, the contractor must have a roof. Web hillsborough county development services maintains documents and records for building permits. Web hillsborough county roofing affidavit form use a hillsborough county roof affidavit template to make your document workflow. Web fill online, printable, fillable, blank roof mitigation verification statement form. Web hillsborough county | pasco home inspection | wind mitigation & roof inspection | lakeland wind mitigation inspection | 4. Web these are the forms that clerk's office provides for the sealing and expungement of court records. If the form you are seeking. Uniform mitigation verification inspection for m. When a roof covering on an existing structure with a sawn lumber, wood plank or wood structural panel roof deck is.
Web If No Progress Check Inspection Has Been Made By A Hillsborough County Building Inspector, The Contractor Must Have A Roof.
Web this form does not verify loss mitigation features. Web hillsborough county roofing affidavit form use a hillsborough county roof affidavit template to make your document workflow. Web use this service to obtain information about commercial building plan review and questions related to building, electrical,. Web if no progress check inspection has been made by a hillsborough county building inspector, the contractor must have a roof.
Web Our Residential Windstorm Mitigation Inspections Are Only Available In Pasco, Pinellas And Hillsborough County Areas.
All building permitting, contractor licensing, fire alarm and tree removal applications. Use fill to complete blank online. Web roof mitigation verification statement permit # _____ on or about , i did personally inspect roof replacement work at (address) based upon the examination, i. Web hillsborough county development services maintains documents and records for building permits.
Web New Online Permitting System Is Now Live!
Web if your roof was installed prior to the 2007 florida building code and more than 25% of the total roof area or roof section of any. The local mitigation strategy is a document that identifies potential hazards that may. Web hillsborough county | pasco home inspection | wind mitigation & roof inspection | lakeland wind mitigation inspection | 4. Web these are the forms that clerk's office provides for the sealing and expungement of court records.
If The Form You Are Seeking.
Web fill online, printable, fillable, blank roof mitigation verification statement form. Uniform mitigation verification inspection for m. When a roof covering on an existing structure with a sawn lumber, wood plank or wood structural panel roof deck is. Web roof mitigation (fbceb and fbcr) the florida building code, existing building (fbceb) has historically required a certain.








