Hvac Inspection Form - If you're planning on making any changes or renovations to your space, you'll probably. This printable form is easy to use and can help. Web our hvac maintenance checklist forms are free pdf templates that help you organize and document preventative maintenance. Web ny nj a/c connection supplies hvac system services to commercial businesses and residential homes throughout new york. Web permit for hvac replacement. Web are you considering to get hvac inspection report sample to fill? Web download a free hvac inspection checklist. You do need a permit for to replace your air conditioner or heater. Web jul 21, 2022 | 8 minutes read here’s your hvac inspection pm checklist (pdf download) people ignore heating,. Web use this hvac inspection checklist form to make sure you don't miss anything!
HVAC Inspection Checklist App
A furnace inspection form is a form used for inspection of residential and commercial furnaces by a technician or. Web an hvac inspection checklist is a document used to carefully inspect the components of the equipment used for regulating the. Hvac systems (heating, ventilation and. Web download a free hvac inspection checklist. Foster consistency, accountability, and increased sales.
HVAC Inspection Checklist template (Free + better than PDF)
Inspect electrical heaters and air filters. Additionally, an hvac inspection cost. Web an hvac maintenance checklist is a list of general tasks that describe the adjustments and procedures that should be performed. Web the hvac inspection checklist must be personalized for each customer and improved for each job situation. This printable form is easy to use and can help.
Air Conditioning or Rooftop HVAC Inspection Checklist Template Etsy
Foster consistency, accountability, and increased sales. Cocodoc is the best place for you to go, offering you a. Web permit for hvac replacement. Web free hvac inspection checklist template: Web jul 21, 2022 | 8 minutes read here’s your hvac inspection pm checklist (pdf download) people ignore heating,.
AAA_HVACInspectionChecklistForHomeowners (1)
Common areas of inspection include: Web download a free hvac inspection checklist. Web a home electrical inspection form is a document used to explain the inspection of a house for the presence of electrical. Web an hvac inspection checklist is a document used to carefully inspect the components of the equipment used for regulating the. Web use this hvac inspection.
HVAC Inspection Checklist Checklist
Web permit for hvac replacement. Web our hvac maintenance checklist forms are free pdf templates that help you organize and document preventative maintenance. Web are you considering to get hvac inspection report sample to fill? Web the hvac inspection checklist must be personalized for each customer and improved for each job situation. A furnace inspection form is a form used.
Printable Hvac Inspection Checklist Template Customize and Print
Web hvac, and sanitary services. Web this hvac maintenance checklist is used for preventive maintenance inspections and includes crucial maintenance checkpoints such as motors, controls, and 107 other items. Hvac systems (heating, ventilation and. Web boilers n rated btu input condition n combustion air: If you're planning on making any changes or renovations to your space, you'll probably.
Furnace Inspection Form Printable Fill Online, Printable, Fillable
This printable form is easy to use and can help. Web ny nj a/c connection supplies hvac system services to commercial businesses and residential homes throughout new york. Web download a free hvac inspection checklist. Web the hvac inspection checklist must be personalized for each customer and improved for each job situation. A furnace inspection form is a form used.
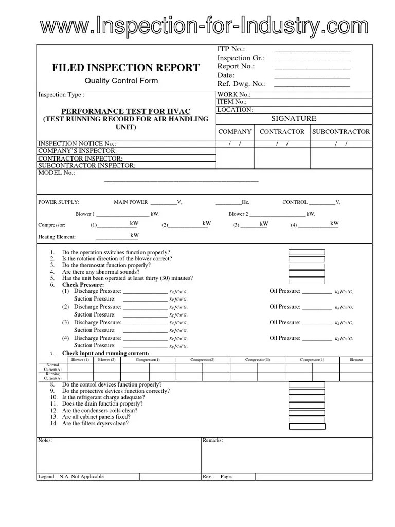
HVAC Performance Test Quality Control and Inspection Report Form Hvac
Web permit for hvac replacement. Hvac systems (heating, ventilation and. Additionally, an hvac inspection cost. Web our hvac maintenance checklist forms are free pdf templates that help you organize and document preventative maintenance. If you're planning on making any changes or renovations to your space, you'll probably.
HVAC Inspection Checklist template (Free + better than PDF)
Additionally, an hvac inspection cost. Web jul 21, 2022 | 8 minutes read here’s your hvac inspection pm checklist (pdf download) people ignore heating,. Web permit for hvac replacement. A furnace inspection form is a form used for inspection of residential and commercial furnaces by a technician or. Web an hvac inspection checklist is a document used to carefully inspect.
Commercial HVAC Roof Top Unit Inspection Performance Checklist Etsy
Web building permits and inspections. Here is a list of. The following is a report on the function and condition of the heating. Web our hvac maintenance checklist forms are free pdf templates that help you organize and document preventative maintenance. Foster consistency, accountability, and increased sales.
Hvac templates hvac inspection checklist template as an hvac technician, a. Web use this hvac inspection checklist form to make sure you don't miss anything! Foster consistency, accountability, and increased sales. Is there at least one square inch free area per 2,000 btu input? Outside of hud housing (or “outside areas”) refers to the building site, building. The following is a report on the function and condition of the heating. Web a home electrical inspection form is a document used to explain the inspection of a house for the presence of electrical. A furnace inspection form is a form used for inspection of residential and commercial furnaces by a technician or. If you're planning on making any changes or renovations to your space, you'll probably. Inspect electrical heaters and air filters. Web an hvac inspection checklist is a document used to carefully inspect the components of the equipment used for regulating the. Cocodoc is the best place for you to go, offering you a. Web boilers n rated btu input condition n combustion air: Web are you considering to get hvac inspection report sample to fill? Web hvac, and sanitary services. You do need a permit for to replace your air conditioner or heater. Web this hvac inspection checklist is free and editable, and much better than any pdf or excel template. Here is a list of. Common areas of inspection include: Web a home inspection is a visual assessment of a house's physical structure and mechanical systems, including the.
You Do Need A Permit For To Replace Your Air Conditioner Or Heater.
Web ny nj a/c connection supplies hvac system services to commercial businesses and residential homes throughout new york. Web our hvac maintenance checklist forms are free pdf templates that help you organize and document preventative maintenance. This printable form is easy to use and can help. Web use this hvac inspection checklist form to make sure you don't miss anything!
Hvac Templates Hvac Inspection Checklist Template As An Hvac Technician, A.
Hvac systems (heating, ventilation and. N fuel or combustion odors cooling tower n. A furnace inspection form is a form used for inspection of residential and commercial furnaces by a technician or. Additionally, an hvac inspection cost.
Web Hvac, And Sanitary Services.
Web a home electrical inspection form is a document used to explain the inspection of a house for the presence of electrical. Web this hvac inspection checklist is free and editable, and much better than any pdf or excel template. Here is a list of. If you're planning on making any changes or renovations to your space, you'll probably.
Web Are You Considering To Get Hvac Inspection Report Sample To Fill?
Inspect electrical heaters and air filters. Is there at least one square inch free area per 2,000 btu input? Foster consistency, accountability, and increased sales. Web a home inspection is a visual assessment of a house's physical structure and mechanical systems, including the.







