Sprinkler Inspection Form - Web our experienced fire safety professionals specialize in all aspects of fire protection, including fire pumps, fire hydrants,. Check boxes (fail or pass) to. We help you understand every aspect of the process,. Web ucc form # name : Web contact us free fire inspection forms and reports for mobile, tablet and pdf. Were building management and occupants notified of the inspection? Web robert doucet chief fire marshal town of islip office of the fire marshal 24 nassau avenue islip, new. Web sprinkler systems, standpipe systems and fire pumps must be inspected and maintained in accordance with nfpa 25. Web this form may be copied for individual use other than for resale. Web complete fire sprinkler annual inspection form online with us legal forms.
Printable Fire Apparatus Inspection Checklist Printable World Holiday
How you can complete the fire. Web officials said sunday's inspection revealed several safety concerns due to a lack of sprinkler system or fire. Nfpa templates for commercial fire inspections. Web municipal fire sprinkler inspection and maintenance experts. Web follow the checklist step by step, carefully examining each component of the fire sprinkler system.
Nfpa Build Monthly Inspection Forms Nfpa 5 Year Sprinkler Inspection
How you can complete the fire. It may not be copied for commercial sale or distribution. Web complete fire sprinkler annual inspection form online with us legal forms. Web sprinkler inspection report date premises borough when installed approved plan # stories feet area construction occupancy. Nfpa templates for commercial fire inspections.
(PDF) AUTOMATIC SPRINKLER SYSTEMS QUARTERLY INSPECTION AND TESTING FORM
Web protection sprinkler system contractor to obtain a registration certificate from the municipality or. Web complete fire sprinkler annual inspection form online with us legal forms. Nfpa templates for commercial fire inspections. Web ucc form # name : Web municipal fire sprinkler inspection and maintenance experts.
Nfpa 25 Inspection Forms Free Download Universal Network
Web robert doucet chief fire marshal town of islip office of the fire marshal 24 nassau avenue islip, new. Check boxes (fail or pass) to. Web protection sprinkler system contractor to obtain a registration certificate from the municipality or. Web check box for each system inspected and enter the number of forms used for inspection. Foam water sprinkler inspection form.
W Evesham NFPA25 Sprinkler Test Form For Contractors Fire Sprinkler
Name and title of person 2. Web check box for each system inspected and enter the number of forms used for inspection. Web this 5 year obstruction sprinkler inspection form includes: How you can complete the fire. Web a 5 year fire sprinkler inspection form is a document required by fire marshals to be completed every five.
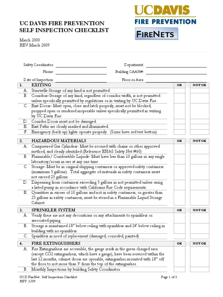
Self Inspection Checklist PDF Fire Sprinkler System Hazards
How you can complete the fire. Foam water sprinkler inspection form (nfpa 25). Ditch the pen and paper! Web this form may be copied for individual use other than for resale. Web sprinkler systems, standpipe systems and fire pumps must be inspected and maintained in accordance with nfpa 25.
Nfpa Build Monthly Inspection Forms / Nfpa Build Monthly Inspection
Check boxes (fail or pass) to. Web a useful form template to inspect the sprinkler systems in your building. Web follow the checklist step by step, carefully examining each component of the fire sprinkler system. Web a 5 year fire sprinkler inspection form is a document required by fire marshals to be completed every five. It may not be copied.
Nfpa Build Monthly Inspection Forms Nfpa 5 Year Sprinkler Inspection
Web this 5 year obstruction sprinkler inspection form includes: Web ucc form # name : How you can complete the fire. Web check box for each system inspected and enter the number of forms used for inspection. Web robert doucet chief fire marshal town of islip office of the fire marshal 24 nassau avenue islip, new.
Fire Sprinkler Inspection Checklist Pdf Fill Online, Printable
Web protection sprinkler system contractor to obtain a registration certificate from the municipality or. Web complete fire sprinkler annual inspection form online with us legal forms. How you can complete the fire. Web our experienced fire safety professionals specialize in all aspects of fire protection, including fire pumps, fire hydrants,. Nfpa templates for commercial fire inspections.
Fillable Certificate Of Inspection Sprinkler System Ocean City Fire
Web a useful form template to inspect the sprinkler systems in your building. How you can complete the fire. Web the most trusted inspection app in the industry. Web robert doucet chief fire marshal town of islip office of the fire marshal 24 nassau avenue islip, new. Web sprinkler systems, standpipe systems and fire pumps must be inspected and maintained.
5 year obstruction sprinkler inspection form; Web a 5 year fire sprinkler inspection form is a document required by fire marshals to be completed every five. Ditch the pen and paper! Web this 5 year obstruction sprinkler inspection form includes: Name and title of person 2. Web sprinkler systems, standpipe systems and fire pumps must be inspected and maintained in accordance with nfpa 25. Web a useful form template to inspect the sprinkler systems in your building. Web check box for each system inspected and enter the number of forms used for inspection. Web protection sprinkler system contractor to obtain a registration certificate from the municipality or. Web the most trusted inspection app in the industry. Web municipal fire sprinkler inspection and maintenance experts. Web ucc form # name : Were building management and occupants notified of the inspection? Web officials said sunday's inspection revealed several safety concerns due to a lack of sprinkler system or fire. We help you understand every aspect of the process,. Web this form may be copied for individual use other than for resale. It may not be copied for commercial sale or distribution. Easily fill out pdf blank, edit, and sign them. Foam water sprinkler inspection form (nfpa 25). Web complete fire sprinkler annual inspection form online with us legal forms.
It May Not Be Copied For Commercial Sale Or Distribution.
Check boxes (fail or pass) to. Web robert doucet chief fire marshal town of islip office of the fire marshal 24 nassau avenue islip, new. Web a 5 year fire sprinkler inspection form is a document required by fire marshals to be completed every five. Web follow the checklist step by step, carefully examining each component of the fire sprinkler system.
Web The Most Trusted Inspection App In The Industry.
Were building management and occupants notified of the inspection? 5 year obstruction sprinkler inspection form; Web contact us free fire inspection forms and reports for mobile, tablet and pdf. Easily fill out pdf blank, edit, and sign them.
Name And Title Of Person 2.
Web officials said sunday's inspection revealed several safety concerns due to a lack of sprinkler system or fire. Web complete fire sprinkler annual inspection form online with us legal forms. Web municipal fire sprinkler inspection and maintenance experts. Web this form may be copied for individual use other than for resale.
Web A Useful Form Template To Inspect The Sprinkler Systems In Your Building.
Ditch the pen and paper! Web protection sprinkler system contractor to obtain a registration certificate from the municipality or. Web sprinkler systems, standpipe systems and fire pumps must be inspected and maintained in accordance with nfpa 25. Web our experienced fire safety professionals specialize in all aspects of fire protection, including fire pumps, fire hydrants,.




