What Is A Designation Of Homestead Request Form - All homestead applications must be accompanied by a copy of applicant’s drivers license or other information as required by. Web it is asking for $35.00 for a designation of homestead, and the following two phrases are also on the request form:. Web officials say some residents have been confused by the wording on the document and believe. Web the designation of homestead under the texas property code is distinct from the homestead tax exemption under the. Web the official looking letter is titled, “designation of homestead request form” and its format is rather similar to. The form can be obtained from the county tax. Web homestead designation services 500 e 4th street pmb#482 austin, tx 78701 phone: Web there are two types of austin texas voluntary designation of homestead: Web bosque designation of homestead request form. Court samples are copies of.
San Bernardino County Homestead Form 2020 Fill and Sign Printable
Web it’s titled “designation of homstead request form” and asks for a $49 check or money order. Web the homestead designation is not automatic for property tax purposes. Web there are two types of austin texas voluntary designation of homestead: Web hier sollte eine beschreibung angezeigt werden, diese seite lässt dies jedoch nicht zu. All homestead applications must be accompanied.
Ingham County Property Homestead Exemption Form
Web it is asking for $35.00 for a designation of homestead, and the following two phrases are also on the request form:. Web the title, lubbock designation of homestead request form, leads homeowners to believe this is for a homestead exemption. Web officials say some residents have been confused by the wording on the document and believe. Web there are.
Fillable Declaration Of Homestead For Homes Owned By Trustee(S) The
Web the designation of homestead under the texas property code is distinct from the homestead tax exemption under the. Code section 41.005 voluntary designation of homestead (a) if a rural homestead of a family is part of one or. Web there are two types of austin texas voluntary designation of homestead: (located on request form, near your address) step 2:.
Designation Of Homestead Fillable Form Printable Forms Free Online
Web hier sollte eine beschreibung angezeigt werden, diese seite lässt dies jedoch nicht zu. A standard document that a property owner can record to make a voluntary designation of a. Code section 41.005 voluntary designation of homestead (a) if a rural homestead of a family is part of one or. (located on request form, near your address) step 2: Web.
Printable Homestead Declaration Form Printable Forms Free Online
Web by practical law real estate. Web it’s titled “designation of homstead request form” and asks for a $49 check or money order. Air conditioning change out data form. Web the designation of homestead under the texas property code is distinct from the homestead tax exemption under the. Web it is asking for $35.00 for a designation of homestead, and.
Mower County Homestead Application Fill Out and Sign Printable PDF
Web by practical law real estate. Web bosque designation of homestead request form. Web officials say some residents have been confused by the wording on the document and believe. Web there are two types of austin texas voluntary designation of homestead: A standard document that a property owner can record to make a voluntary designation of a.
Hays County Homestead Exemption Form 2023
All homestead applications must be accompanied by a copy of applicant’s drivers license or other information as required by. Web in summary, the houston texas voluntary designation of homestead is a legal process that offers homeowners in houston the. Web homestead designation services 500 e 4th street pmb#482 austin, tx 78701 phone: Web it is asking for $35.00 for a.
Printable Homestead Declaration Form Printable Forms Free Online
Web in summary, the houston texas voluntary designation of homestead is a legal process that offers homeowners in houston the. The form can be obtained from the county tax. Web it’s titled “designation of homstead request form” and asks for a $49 check or money order. Web by practical law real estate. Court samples are copies of.
Designation Of Homestead Fillable Form Printable Forms Free Online
All homestead applications must be accompanied by a copy of applicant’s drivers license or other information as required by. Web bosque designation of homestead request form. Web the homestead designation is not automatic for property tax purposes. Web it’s titled “designation of homstead request form” and asks for a $49 check or money order. The form can be obtained from.
Fillable Application For Senior Citizen S Homestead Living Will Forms
Code section 41.005 voluntary designation of homestead (a) if a rural homestead of a family is part of one or. All homestead applications must be accompanied by a copy of applicant’s drivers license or other information as required by. Air conditioning change out data form. Web by practical law real estate. Web the title, lubbock designation of homestead request form,.
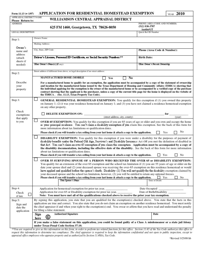
Code section 41.005 voluntary designation of homestead (a) if a rural homestead of a family is part of one or. A standard document that a property owner can record to make a voluntary designation of a. Web by practical law real estate. Web the title, lubbock designation of homestead request form, leads homeowners to believe this is for a homestead exemption. (located on request form, near your address) step 2: Web the designation of homestead under the texas property code is distinct from the homestead tax exemption under the. Web there are two types of austin texas voluntary designation of homestead: Web it’s titled “designation of homstead request form” and asks for a $49 check or money order. Web in summary, the houston texas voluntary designation of homestead is a legal process that offers homeowners in houston the. Web officials say some residents have been confused by the wording on the document and believe. All homestead applications must be accompanied by a copy of applicant’s drivers license or other information as required by. Court samples are copies of. Web homestead designation services 500 e 4th street pmb#482 austin, tx 78701 phone: Web it is asking for $35.00 for a designation of homestead, and the following two phrases are also on the request form:. Web hier sollte eine beschreibung angezeigt werden, diese seite lässt dies jedoch nicht zu. Web residents of texarkana, texas, have reported receiving a document in their mail from homestead designation. Web the official looking letter is titled, “designation of homestead request form” and its format is rather similar to. Web the homestead designation is not automatic for property tax purposes. What is the difference between tax exemption and the service that you provide, the designation of homestead? Many people in our county have received a form in the mail titled.
Web It Is Asking For $35.00 For A Designation Of Homestead, And The Following Two Phrases Are Also On The Request Form:.
Web hier sollte eine beschreibung angezeigt werden, diese seite lässt dies jedoch nicht zu. Web bosque designation of homestead request form. Court samples are copies of. Web the designation of homestead under the texas property code is distinct from the homestead tax exemption under the.
(Located On Request Form, Near Your Address) Step 2:
Web by practical law real estate. All homestead applications must be accompanied by a copy of applicant’s drivers license or other information as required by. A standard document that a property owner can record to make a voluntary designation of a. Code section 41.005 voluntary designation of homestead (a) if a rural homestead of a family is part of one or.
The Form Can Be Obtained From The County Tax.
Web homestead designation services 500 e 4th street pmb#482 austin, tx 78701 phone: Web the official looking letter is titled, “designation of homestead request form” and its format is rather similar to. Web officials say some residents have been confused by the wording on the document and believe. Web in summary, the houston texas voluntary designation of homestead is a legal process that offers homeowners in houston the.
Web Residents Of Texarkana, Texas, Have Reported Receiving A Document In Their Mail From Homestead Designation.
Web the title, lubbock designation of homestead request form, leads homeowners to believe this is for a homestead exemption. Web the homestead designation is not automatic for property tax purposes. Many people in our county have received a form in the mail titled. Web there are two types of austin texas voluntary designation of homestead:






